Where ideas meet space

We make things that work better and last longer.

Cost Calculator

Calculate the cost of Architecture or Interior Design instantly

Choose Service

Number of Rooms

Square Meters

Total Amount

0 AMD

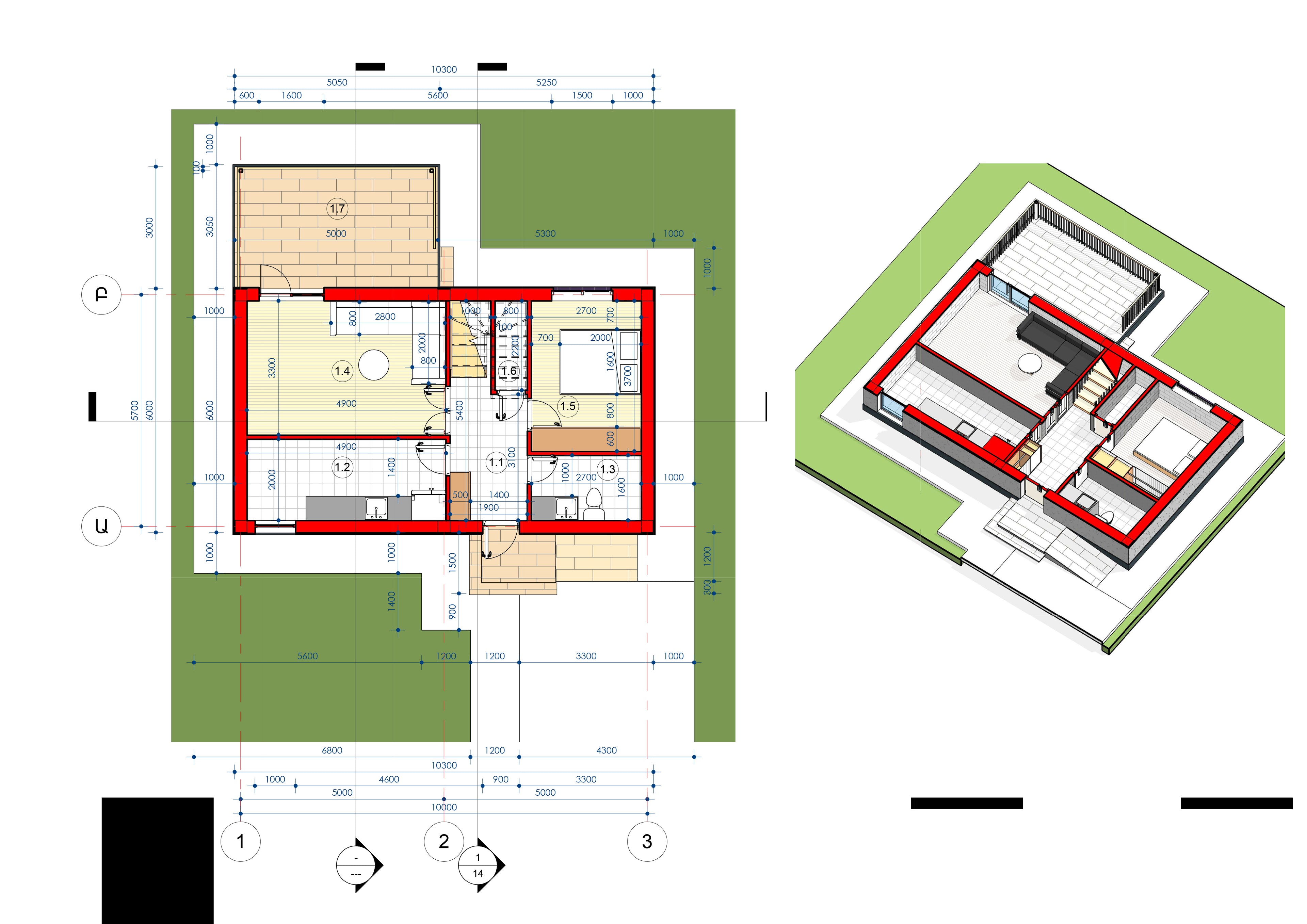
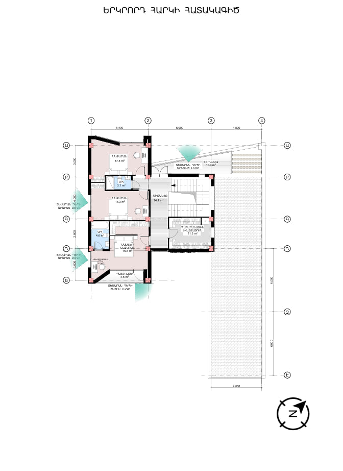
Ready-made projects

We offer ready-made architectural designs that allow the client to save both time and get their dream home with minor changes.

Լearn more

Our partners